Açıklama
84 m² Tek Katlı Prefabrik Ev: Modern ve Fonksiyonel Yaşam Alanı
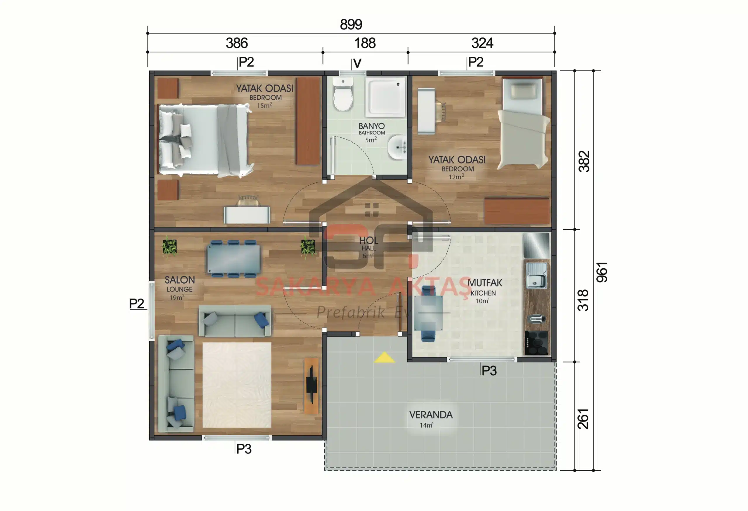
84 m² tek katlı prefabrik ev, geniş iç mekanları ve estetik dış cephesiyle rahat ve konforlu bir yaşam sunar. Sağlam yapısı ve yüksek kaliteli malzemeleri ile uzun yıllar boyunca kullanılabilir.
Dış Cephe Tasarımı ve Yapısal Özellikler
- Ahşap desenli Betopan dış cephe, doğal bir görünüm sunar ve dayanıklı yapı sağlar.
- Estetik Betopan köşe kaplamaları, evin köşelerine zarif bir dokunuş katar.
- Kurşunsuz PVC ERPEN pencereler, güvenlik ve enerji verimliliği sağlar.
İç Mekan Tasarımı ve Yalıtım Özellikleri
- Sıva altı elektrik tesisatı ve sıhhi tesisat sistemi, pratik bir iç mekan düzeni sağlar.
- 6 cm iç duvarlar ve 10 cm dış duvarlar, mükemmel ısı yalıtımı sunar.
- Amerikan göbekli iç kapılar, estetik bir iç mekan sunar.
Çatı ve Balkon Kapı Detayları
- 2,50 m bina yüksekliği, geniş ve ferah bir iç mekan sağlar.
- Çatı kaplama seçenekleri; boyalı galveniz sac ve opsiyonel metal kiremit ile şık ve dayanıklı bir dış görünüm sunar.
- Balkon kapısı PVC Kap? Pakpen ile sağlam ve estetik bir tasarıma sahiptir.
Neden 84 m² Prefabrik Ev Tercih Etmelisiniz?
- Fonksiyonel iç mekan, modern yaşam ihtiyaçlarını karşılar.
- Ahşap desenli dış cephe, estetik görünüme katkı sağlar.
- Yüksek yalıtım özellikleriyle enerji verimliliği sağlar ve yaşam konforunu artırır.
Tüm sıkça sorulan sorularımıza ‘buraya’ tıklayarak, +90 (534) 330 16 81, +90 (530) 583 65 95, +90 (536) 719 65 95, +90 (536) 716 65 95 telefon numaralarından da bizlere ulaşabilirsiniz.
Finansal esneklik sağlayan 12 taksit ile operasyonel verimlilik sunan
ücretsiz kurulum–montajı entegre ediyor; telefonla sipariş
desteğimizle Türkiye’nin her noktasında hızlı, şeffaf ve kontrol edilebilir
bir satın alma deneyimi sunuyoruz.
- 12 Taksit
- Ücretsiz Kurulum–Montaj
- Telefonla Sipariş
- Türkiye’nin Her Yerinde
Genel Bakış
- ID 12
- Yatak Odası 1
- Banyolar 1
- Prefabrik Ev Metrekaresi 84 m2
Teknik Detaylar
- Prefabrik Ev ID'si 12
- Fiyat 774.̶70̶0̶ ₺ yerine 662,700₺
- Prefabrik Ev Tipi 2+1 Tek Katlı, Popüler Evler, Tek Katlı Prefabrik Ev, Tüm Prefabrik Evler
- Prefabrik Ev Durumu Satışta
- Odalar 3
- Yatak Odası 1
- Banyolar 1
- Alan 84 m2
- Bina Yüksekliği (m) 2,50
- İç Duvar (cm) 10
- Dış Duvar (cm) 10

